轴毂过盈连接压装机设计
无需注册登录,支付后按照提示操作即可获取该资料.
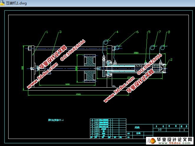
轴毂过盈连接压装机设计(任务书,开题报告,毕业论文说明书16700字,CAD图纸2张)
[摘要]:液压技术是一种优质、高效、节能的先进技术,广泛应用于汽车、农具、刀具、航空、军工、石油、化工等行业设备的各个制造部门,许多发达国家已把大力推广应用液压技术作为一项技术政策。
本设计是个以设计液压缸为主的压装机设计,液压缸是动力,然后经过过盈,使轴和毂紧密结合,达到联接的目的。具体包括过盈联接技术和液压缸技术的前景,应用以及在本设计中具体应用的一些方面。最后是液压缸的选择以及其他配件选择,另外的还有液压油路控制。
[关键词]:液压缸;过盈联接;压装机;油路
The shaft hub interference connection pressure machine design
[Abstract]:Hydraulic technology is one kind of the advanced technology of high quality, high efficiency, energy saving,Widely used in automobiles, farm tools, cutting tools, aviation, military industry, petroleum, chemical industry equipment manufacturing sector, many developed countries have vigorously promoted application of hydraulic technology as a policy.
This design is given priority to with design of hydraulic cylinder pressure machine design, hydraulic cylinder is power, then through the interference, the shaft and the hub together, achieve the goal of connection. Including interference connection technology and the technology of hydraulic cylinder, the prospect of application and some of the aspects of the specific application in the design. The last is the selection of hydraulic cylinder and other accessories .
[Key words]: interference fit joint hydraulic cylinder pressure machine oil
毕业设计(论文)题目:
轴毂过盈连接压装机设计
2.毕业设计(论文)起止时间:2014年 10 月 30 日~2015 年 6 月 1日
3.毕业设计(论文)所需资料及原始数据(指导教师选定部分)
1)原始数据:
功能:用于轴毂过盈联接的装配
最大装配力:100KN
工件最大尺寸:Φ500X1000mm
无杆腔油压:10MPa
压块油压:30MPa


目录
毕业设计(论文)任务书 Ⅰ
开题报告 Ⅱ
指导教师审查意见 Ⅲ
评阅老师评语 Ⅳ
答辩会议记录 Ⅴ
中文摘要 Ⅵ
外文摘要 Ⅶ
前言 1
1方案论证 1
2过程论证 2
2.1 过盈联接技术介绍 2
2.2 液压系统技术介绍 5
3 液压系统的设计和选择 8
3.1确定对液压系统的工作要求 8
3.2 轴毂过盈联接压装机其他配件设计分析 14
3.3 液压传动系统的安装,使用和维护 32
参考文献 38
致谢 39
