再植成型草块移取机设计(含CAD零件图装配图)
无需注册登录,支付后按照提示操作即可获取该资料.
再植成型草块移取机设计(含CAD零件图装配图)(论文说明书12000字,CAD图10张)
摘 要: 草块移植机和拖拉机采用三点悬挂连接,利用拖拉机的输出动力,经过整合的变速系统,高速将已经提前准备妥当的草块块铺设到指定位置,本机构的设计利用了曲柄滑块机构实现高速往复运动,将草块箱内垂直堆积的草块块以层为单位实现分离,利用胶带输送机,将已分离得草块平稳有序地输送到地面,通过控制拖拉机的行走速度和胶带输送机运行速度,以固定的间距铺设草块,再利用液压压力机构将铺设在地面的草块压实。
关键词:草块移植; 曲柄滑块机构; 胶带输送机; 液压压力机构
Design of Transplanted turf machine
Abstract: The machine and tractor turf transplantation using three-point suspension connected to the output of the use of tractor power, after the variable-speed system integration, high-speed will be ready in advance of the laying of turf block to the designated location, the design of the body using a slider-crank mechanism to achieve high-speed reciprocating motion, the vertical accumulation of turf grass inside the block as a unit in order to achieve the separation layer, the use of belt conveyor, through the control of tractor speed and the running speed of belt conveyor to a fixed distance between the laying of sod, and then the use of hydraulic pressure will be laying on the ground compaction of the turf.
Key words:transplanted turf machine; slider-crank mechanism; belt conveyor;hydraulic pressure on institutions
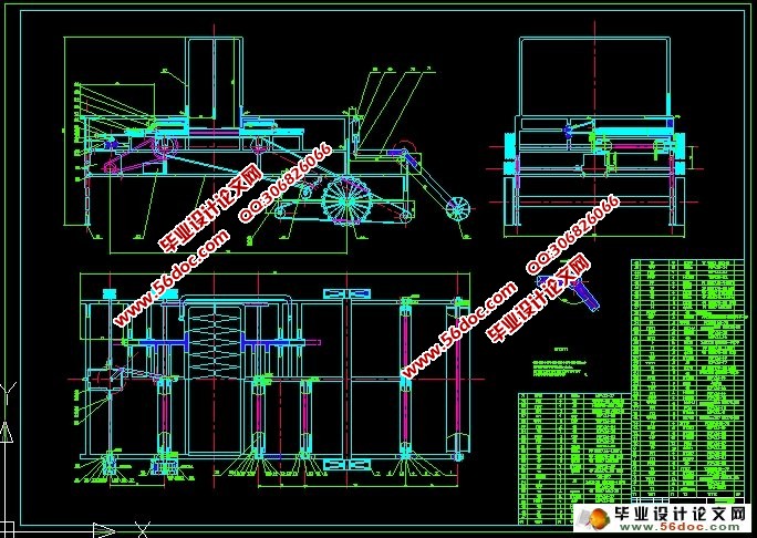
再植成型草块移取机通过曲柄滑块机构带动的上下插销板,通过开启与闭合的动作配合实现草块的分离,具体工作过程于图(1)所示, 从能量输入上分析:上插销板(2)于下插销板(3)是固定连接,即两者的运动方向和速度是一致的当(1)往左运动时,(4)的运动方向也是一样的,再经过齿轮和齿条的配合运动使得(2)、(3)同时向右运动,这两个运动是同时进行的,从运行目的上分析:上面的运动中(1)、(2)相对向草块箱的中心运动,实现关闭动作,将上面的草块和上下插销板之间的草块实现分离,此时,下插销板是开启状态如图(2)所示,分离后的草块自由地落在胶带输送机构上,经其传送,到达地面。在整个分离工作过程中,上下插销板总有一对是向中心位置移动,系统最薄弱的环节是上下插销板都运动到曲柄的行程中点时,此时上下插销板只有一半长度支撑草块如图(4)所示,由于插销板从两端插入,足以承受草块的重量,不会造成草块的大幅度倾斜,不会对后续的分离产生影响。草块箱中的草块重量承受在插销板上,不会对胶带输送机构行成冲击,


目 录
摘 要 1
关键词 1
1 前言 2
2 国内外研究现状 2
2.1 国外研究现状 2
2.2 国内研究现状 2
3 草块分离机构的设计 3
3.1 工作原理说明 3
3.2 各个零件的设计 4
4 曲柄滑块机构的设计 5
5 胶带输送机的结构设计 6
5.1 托辊与机架 6
5.1.1 托辊 6
5.1.2 机架 6
5.1.3 驱动装置 7
5.2 输送能力和胶带宽度的计算 7
5.2.1 输送能力的计算 7
5.2.2 胶带宽度的计算 7
5.3 胶带运行阻力计算 8
5.3.1 直行段运行阻力 8
5.3.2 曲线段的的运行阻力 8
5.4 胶带张力的计算 9
5.5 胶带带垂度与强度验算 10
5.5.1 胶带垂度验算 10
5.5.2 胶带强度验算 11
5.6 牵引力和功率计算 11
5.6.1 传动滚筒的牵引力 11
5.6.2 功率的计算 11
6 带传动的设计计算 12
6.1 确定计算功率Pce 12
6.2 确定V带带型 12
6.3 确定带轮的基准直径 并验算带速v 12
6.4 确定V带的中心距平共处 和基准长度 12
6.5 验算小带轮的包角 13
6.6 计算带的根数z 13
6.7 计算单根V带的初拉力的最小值 13
6.8 计算压轴力Fp 13
7 直齿轮传动的设计计算 14
7.1 功率的确定 14
7.2 齿轮选材 14
7.3 按齿面接触强度设计 14
7.3.1 确定公式内的各计算数值 14
7.3.2 计算 15
7.3.3 计算载荷系数 15
7.4 按齿面弯曲强度设计 16
7.4.1 确定公式内的各计算数 16
7.4.2 设计计算 17
7.4.3 几何尺寸计算 17
8 标准锥齿轮的设计 17
8.1 设计参数 17
8.2 齿根弯曲疲劳强度计算 18
8.3 齿面的接触疲劳强度计算 19
9 轴的设计计算 20
9.1 第二级齿轮轴的设计计算 20
9.1.1 按扭矩初算轴径 20
9.1.2 轴的结构设计 20
9.1.3 按弯扭复合强度计算 21
9.1.4 精确校核轴的疲劳强度 22
9.2 输出轴的设计计算 25
9.2.1 按扭矩初算轴径 25
9.2.2 轴的结构设计 26
9.2.3 按弯扭复合强度计算 26
10 键联接的选择及校核计算 28
10.1 对于第一级齿轮的轴 28
10.2 对于低速轴其上有两出键槽 28
11 联轴器的选择 29
12 液压系统的设计计算 29
12.1 液压压平机构简述 29
12.2 液压系统参数的计算 29
12.3 油缸拉力的计算 30
12.4 油缸的确定 30
12.5 泵源的确定 31
12.6 需要的功率W的确定 31
12.7 系统构成 32
13 结论 34
参考文献 34
致 谢 35
