麦冬分选机的设计(含CAD零件装配图,SolidWorks,IGS三维图)
无需注册登录,支付后按照提示操作即可获取该资料.
麦冬分选机的设计(含CAD零件装配图,SolidWorks,IGS三维图)(论文说明书13900字,CAD图纸9张,SolidWorks三维图,IGS通用三维格式)
摘 要
本课题来源于当今社会机械工业加工设备的改良和更新换代基础之上,通过设计出麦冬分选机,从而来满足当今社会分选设备不足的缺陷。
国内麦冬分选机的研发及制造要与全球号召的高效经济、安全稳定主题保持一致。近期对机械行业中分选设备的使用情况进行了调查,发现在医疗行业中,麦冬是很重要的药材,可以润肺清津,治疗咽炎,自然而然它们入药前的分选工作也非常重要。在分选时如果使用临时设备分选,不但劳动强度太大而且工作效率极低,所以设计一个专用的麦冬分选机势在必行。
本文运用大学所学的知识,提出了麦冬分选机的结构组成、工作原理以及主要零部件的设计中所必须的理论计算和相关强度校验,构建了麦冬分选机总的指导思想,从而得出了该麦冬分选机的优点是高效,经济,并且运行平稳的结论。
关键词:麦冬分选机;医疗;设备;高效
麦冬分选机总体结构的设计
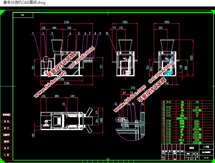
2.1 麦冬分选机的总体方案图
本次设计的麦冬分选机采取的方案是:人工将麦冬倒入料斗里面,然后分选机通过三相电机带动带传动继而带动曲柄摇杆机构动作,而摇杆的一段是与分选箱通过螺纹连接的,这样由曲柄摇杆机构的动作原理我们知道,曲柄摇杆机构的运动轨迹就是往复运动,于是就带动分选箱来回不断地移动,形成振动,而分选箱里面有三层过滤筛,这样麦冬由于重力的作用会自动落入下面的过滤筛里面被过滤筛逐层过滤,最后有各自对应的出料口出料。其具体方案布局图如下:
2.2 麦冬分选机的工作原理
麦冬分选机作为分选设备的一种,也是和其他分选设备的机理类似,其工作原理为:人工将麦冬倒入料斗里面,然后分选机通过三相电机带动带传动继而带动曲柄摇杆机构动作,而摇杆的一段是与分选箱通过螺纹连接的,曲柄摇杆机构的运动轨迹就是往复运动,于是就带动分选箱来回不断地移动,形成振动,而分选箱里面有三层过滤筛,这样麦冬由于重力的作用会自动落入下面的过滤筛里面被过滤筛逐层过滤,最后有各自对应的出料口出料。
2.3 机械传动部分的设计计算
2.3.1电机的选型计算
已知整个麦冬分选机的总重量150KG,其他重量50KG,我们取总重量为200Kg,分选箱反复移动速度为1~2r/min。






目 录
摘 要 i
ABSTRACT ii
目 录 iii
1绪论 1
1.1课题的来源与研究的目的和意义 2
1.2本课题研究的内容 3
1.3 Solidworks设计基础 6
2 麦冬分选机总体结构的设计 10
2.1 麦冬分选机的总体方案图 12
2.2 麦冬分选机的工作原理 13
2.3 机械传动部分的设计计算 14
2.3.1电机的选型计算 15
2.3.2轴承的设计计算 16
2.3.3 V带传动的设计计算 16
2.4 曲柄摇杆机构的设计 17
2.5 麦冬分选机振动机构的设计 18
2.5.1 振动筛的设计 18
2.5.2 振动频率的计算 18
3各主要零部件强度的校核 18
3.1机架的设计与校核 19
3.2轴承强度的校核计算 20
4 麦冬分选机中主要零件的三维建模 21
4.1电机的三维建模 22
4.2机架的三维建模 23
4.3连接套的三维建模 24
4.4麦冬分选机的三维建模 25
5三维软件设计总结 26
结 论 27
致 谢 28
参考文献 29
