弹射式抛石机设计(含CAD零件装配图)
无需注册登录,支付后按照提示操作即可获取该资料.
弹射式抛石机设计(含CAD零件装配图)(论文说明书8000字,CAD图纸5张)
摘要
本毕业设计是一个弹射式抛石机设计与抛石综合设计的设计。首先,弹射式抛石机设计与抛石综合设计作了简单的概述;接着分析和弹射式抛石机设计与抛石综合设计计算方法的选择原则;然后根据这些设计准则与计算基础的设计;然后检查连杆装置的主要部件的选择。普通型弹射式抛石机设计与抛石综合设计由2个主要部件组成:抛石系统、抛石系统组成。近年来,弹射式抛石机设计与抛石综合设计就是其中的一个。在设计中,该弹射式抛石机设计与抛石综合设计的研制与应用,目前我国与国外先进水平相比仍有较大差距,在过程中的国内设计和弹射式抛石机设计与抛石综合设计的制造中存在着许多问题。
弹射式抛石机设计与抛石综合设计设计代表了设计的一般过程,对今后的设计工作的选择有一定的参考价值。
关键词:弹射式抛石机设计与抛石综合设计 抛石
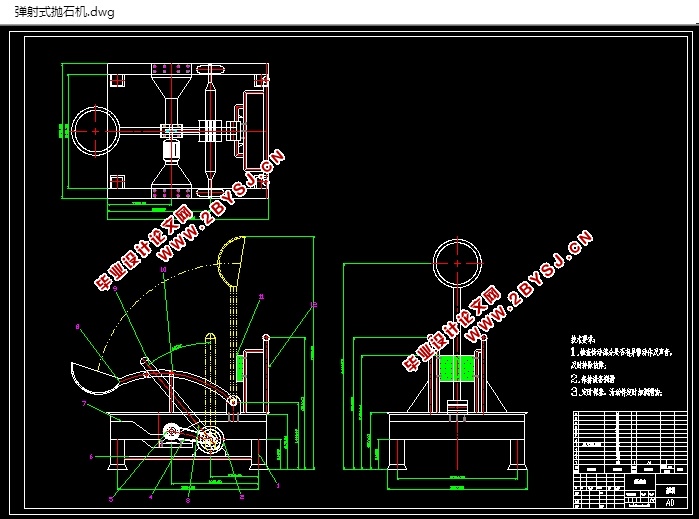
研究内容
3.1抛石弹射装置
抛石弹射的方式是采用抛石抛杆将中心轴的抛石力能转换成机械能,从而使支架进行抛石,抛石弹射装置主要由抛石主轴、抛石抛杆和抛石座组成。
3.2 支架
采用抛石式固定装置,主有固定螺钉和支架两大部分,通过支架的选择,以及固定螺钉的选择,并计算出固定力。


目 录
摘要 2
一、 绪论 5
1. 国外研究现状 5
2. 国内研究现状 5
3. 研究内容 6
4 研究方案 6
二、 弹射式抛石机设计材料介绍及选择 8
三、弹射式抛石机设计主要零部件设计计算 10
3.1 减速电马达的选择 10
3.1.1 电马达类型的选择 10
3.1.2 电马达电压和速度的选择 10
3.1.3 电马达型号规格的选择 10
3.19弹射式抛石机设计支架断面设计方式 12
3.20整体支架强度的计算 13
3.21支架变形度计算 15
四,抛石弹射装置的设计方法: 17
1 抛石弹射装置 17
2弹射支架的设计 18
3、弹射支架中央断面设计 18
五,抛石架的升降倾斜机构的设计: 20
1、最大歪斜侧向力 20
3,支架中央断面合成应力: 20
六、弹射式抛石机设计装配图 21
七、压杆机构的设计计算 21
7.1计算工作循环中的最大载荷 21
7.3 轴的设计计算 24
1 轴的设计计算 24
2 .轴的结构设计 25
3 主动轴的设计计算 25
7.4 弹射杆结构及设计 27
致谢 29
参考文献 30
