剪叉式升降机的设计(含CAD零件装配图,IGS,SolidWorks三维图)
无需注册登录,支付后按照提示操作即可获取该资料.
剪叉式升降机的设计(含CAD零件装配图,IGS,SolidWorks三维图)(论文说明书9800字,CAD图纸7张,IGS三维图,SolidWorks三维图)
The Design of shear fork lift
摘要
随着科技和社会的发展和进步,各种各样的剪叉式升降机将会陆续出现在建筑工地的施工应用中,与此同时,随着时间的推移,随着剪叉式升降机的越来越普及,由于结构或者材料的原因暴露出来的问题越来越频繁,如果不对剪叉式升降机进行结构创新和改进,最基本的就是严重影响了建筑施工的效率,严重的导致剪叉式升降机不能正常使用,影响施工的进度和质量,在以前,我国对这种现状的重视程度还是不够,即在剪叉式升降机上有自带的维修工具,但这对于难度大点的维修工作就带来困难,如果发生故障,根本就不能够维修,而且这种现状存在着许多不和谐因素,更使群体分化加剧,社会人文关怀程度的下降。而如果能够通过合理规划设计出剪叉式升降机,这样不仅能够提高施工质量而且也能够保障人身安全,节约剪叉式升降机的成本。
本次设计是关于剪叉式升降机的设计,通过对传统的剪叉式升降机的结构进行了改进和优化,对它的机械结构和液压系统进行设计,使得此种类型的剪叉式升降机的使用范围更广泛,更加灵活,并且对今后的选型设计工作有一定的参考价值。
关键词:机械;液压;剪叉式升降机;参考
Abstract
For a lot of special places, like the risk is very big, or we are difficult to reach, such as disarm bombs, unknown corresponding domains such as detection, probing deep of more dangerous situation usually need to implement the robot.It’s a main part of robot for micro pedipulator, walking robots and more than six feet, compared to the Eight Legged Robot, because of strong bearing capacity, good stability, which the meritss is simple construction, So, a large number of researchers around the world, start .This paper mainly to the four bar mechanism as the main execution elements to design of micro walking the whole scheme of the four bar mechanism.
Its principle is diagonal synchronization, leg activity by the structure of the crank rocker, front leg movements around the same, it detailed performance curve characteristics of the connecting rod,when the curve trajectory diagonal straight line segment, the robot is stationary, the motion trajectory when the diagonal curve is slanting line do the walking.
Keywords:Manufacturing ,Location, Clamping, Process
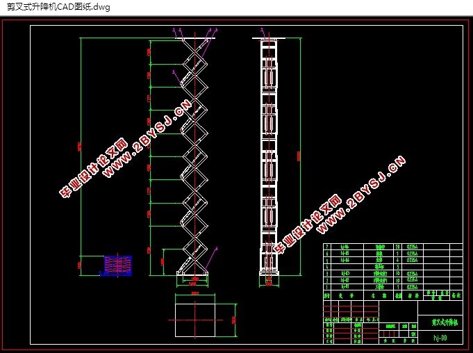
2.1 剪叉式升降机的总体方案图
剪叉式升降机一般用于建筑物层高间运送货物,产品主要用各种工作层间货物上下运送;立体车库和地下车库层高间汽车举升等。产品液压系统设置防坠、超载安全保护装置,各楼层和升降机工作台面均可设置操作按钮,实现多点控制。产品结构坚固,承载量大,升降平稳,安装维护简单方便,是经济实用的低楼层间替代电梯的理想货物输送设备。根据升降台的安装环境和使用要求,选择不同的可选配置,可取得更好的使用效果。其总体方案图如下图2-1所示:
2-1 剪叉式升降机总体方案图
2.2.剪叉式升降机的总体设计
2.2.1 确定剪叉式升降机参数的原则
1、要满足配套设备的相关要求;
2、与剪叉式升降机的工作方式(即时支护或滞后支护)相适应;
3、结构紧凑,人操作方便;
4、剪叉式升降机的工作稳定性好。
2.2.2 确定剪叉式升降机结构参数的内容
1、确定正常工作条件下,剪叉式升降机与相应设备的位置关系;
2、确定剪叉式升降机总体与主要部件的布置与尺。
2.2.3 剪叉式升降机主要尺寸的确定
1、剪叉式升降机高度
剪叉式升降机最小高度为:Hm=1.8m
剪叉式升降机最大高度为:Hn=20m
2、剪叉式升降机伸缩比
剪叉式升降机的伸缩比指最大与最小剪叉式升降机高度之比值为: 代入数据得m=2。
2.2.4 剪叉式升降机间距
所谓剪叉式升降机间距,就是相邻两剪叉式升降机中心线间的距离。按下式计算:bc=Bm+n∙C3;





目 录
摘要 I
Abstract II
1引言 1
1.1课题的来源与研究的目的和意义 1
1.2本课题研究的内容 3
1.3剪叉式升降机的发展现状 5
2剪叉式升降机总体结构的设计 7
2.1剪叉式升降机的总体方案图 9
2.2剪叉式升降机的总体设计 11
2.2.1确定剪叉式升降机参数的原则 12
2.2.2确定剪叉式升降机结构参数的内容 14
2.2.3剪叉式升降机主要参数的确定 15
2.2.4剪叉式升降机间距 16
2.3 举升机的力学分析与计算 17
2.3.1 举升机最低状态时,各臂受力情况 17
2.3.2 举升机举升到最高位置时,各臂受力情况 18
2.3.3 剪刀式举升机构主要受力杆件强度校核计算 18
2.3.4 连接螺栓的校核 19
2.4液压缸的选型计算 20
2.4.1缸体壁厚的计算 21
2.4.2缸底厚度的计算 22
2.4.3缸筒发生完全塑性变形的压力计算3.2.4缸筒径向变形计算 23
2.4.4活塞杆强度的计算 23
2.4.5管路的设计 24
3负载图和速度图 25
4各主要零部件强度的校核 26
4.1工作台的强度校核 27
5剪叉式升降机的控制原理 28
结论 29
致谢 30
参考文献 31
