杯型的简易笔筒注塑模具的设计(含CAD零件图装配图)
无需注册登录,支付后按照提示操作即可获取该资料.
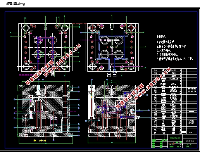
杯型的简易笔筒注塑模具的设计(含CAD零件图装配图)(论文说明书5800字,CAD图纸3张)
塑件描述及设计要求
本塑件为以杯型的简易笔筒,实用性强,便于理解基本的模具设计的理念,成型的方法,模架及其常用标准间的选取。基于此基础,为便于大批量的生产,本塑件采用一模四腔,点浇口,设计的模具要有较高的注塑效率,浇注系统要能够自动脱模,选用单分型面注射模,推出形式为顶杆推出机构完成塑件的推出。塑件的工艺性能要求注塑模中有冷却系统,因此在模具设计中也进行了设计。材料要耐用,耐磨,可以承受较大的冲击力,不易摔坏;好看,有光泽,表面较光滑;化学性质稳定,可以耐高温(一般低于100oC),耐化学腐蚀。本次的设计查阅了大量的专业资料和书籍,丰富了设计过程。笔筒形状如下图:
通过测量 ,尺寸如下:
(壁厚为2mm)
1.2 塑件批量
本产品为大规模批量生产制品,采用一模四腔,提高生产效率,缩短生产周期。
1.3 塑件体积和质量计算
该产品材料为PP,查书本得知其密度为0.89~0.91,收缩率为1.0%~2.5%,计算其平均密度为0.90 g/cm3,平均收缩率为1.75﹪。




目 录
第一章 塑件分析……………………………………………………x
1.1塑件描述及设计要求….……………………………………………………x
1.2塑件批量……………….……………………………………………………x
1.3塑件体积和质量计算…………………………………………………………x
第二章 注塑机的确定.…………………………………………… x
第三章 模具设计有关计算…………………………………………x
3.1凹模工作尺寸计算………………………………………………………… x
3.2凸模工作尺寸计算…….……………………………………………………x
第四章 模具结构设计………………………………………………x
4.1模具结构设计………….……………………………………………………x
4.1模具工作过程描述……………………………………………………………x
第五章 注塑机参数校核…………………………………………….…… x
5.1最大注塑量校核……………….……………………………………………x
5.2锁模力校核……….…………………………………………………………x
5.3模具与注塑机安装部分相关尺寸校核………………………………………x
5.2开模行程校核…………………………………………………………………x
5.2型腔壁厚、底板厚度校核……………………………………………………x
5.2模具冷却系统设计……………………………………………………………x
参考文献…………………………………………………………… xx
致谢………………………………………………………………… xx
