单笼货运电梯—吊笼、安装把杆、断绳保护器设计(含CAD零件图装配图)
无需注册登录,支付后按照提示操作即可获取该资料.
单笼货运电梯—吊笼、安装把杆、断绳保护器设计(含CAD零件图装配图)(任务书,开题报告,论文说明书5000字,CAD图21张)
摘 要
货运电梯又称施工升降机是建筑施工中不可缺少的垂直运输机械,自1973年第一台国产齿轮齿条式施工升降机诞生以来,历经30多年的不断发展,升降机在结构形式、功能、用途、安全装置等多个方面都有了很大的变化和发展。施工升降机主要用于城市高层和超高层的各类建筑中,这主要因为这样的建筑高度对于使用井字架、龙门架来完成作业是十分困难的。建筑施工升降机除了应用在高层建筑中还可以应用在大桥的建设中,此外,它还可以应用在大型化工厂冷却塔、发电厂的烟囱、广播电视塔以及煤矿等多种施工场合下,施工升降机已成为建筑行业中一种必不可少的机械设备。
本文主要针对货运电梯中的吊笼进行设计计算。首先确定吊笼的形状尺寸及材料的型号,然后算出吊笼总重,最后对吊笼中的各个受力杆件,耳板及钢管等进行强度校核。
关键词:货运电梯 吊笼 设计计算
Single Cage Fluctuation Freight Elevators - Hoisting Cage,
Installation Pole and Broken Rope Protector Design
Abstract
Freight elevator is also called construction lifter and it is indispensable to the construction of vertical transportation machinery.The elevator had made a lot of change and development in structure, function, purpose, safety equipment, and other aspects after 30 years of development since 1973 when the first domestic gear rack type construction lifter bore.Construction elevator is mainly used for all kinds of tall and super-tall city buildings,because it is very difficult to use well tower and gantry to finish the homework to the height of the building.Construction elevator is applied not only in the high-rise buildings,but also in the construction of the bridge.In addition, it also can be applied in the large chemical plant cooling tower, the chimney of power plant, radio and television tower and coal mine construction situations. construction lifter has become an indispensable equipment in the construction industry.
This article mainly aims at the hanging basket in the freight elevator to do the design and calculation.Firstly, determine the shape of the hoisting cage and the model of material.Then calculate the total weight of the hoisting cage. Finally check the strength of each bar,ear plate and steel pipe in the hoisting cage.
Key words: Construction elevator Hoisting cage Design calculation
2.3.2工况分析
考虑到施工升降机的工作状态,存在3种极限危险工况需要校核吊笼强度。
即工况Ⅰ:吊笼满载匀速正常运行。
工况Ⅱ:吊笼满载且以1 m/s2的加速度提升。
工况Ⅲ:吊笼满载正常运行,突然发生断绳(此时顶梁不受拉力),断绳保护器动作。




目 录
摘 要 I
Abstract II
目 录 III
第一章 概 述 1
1.1 课题背景及国内外发展现状 1
1.2本课题的目的 2
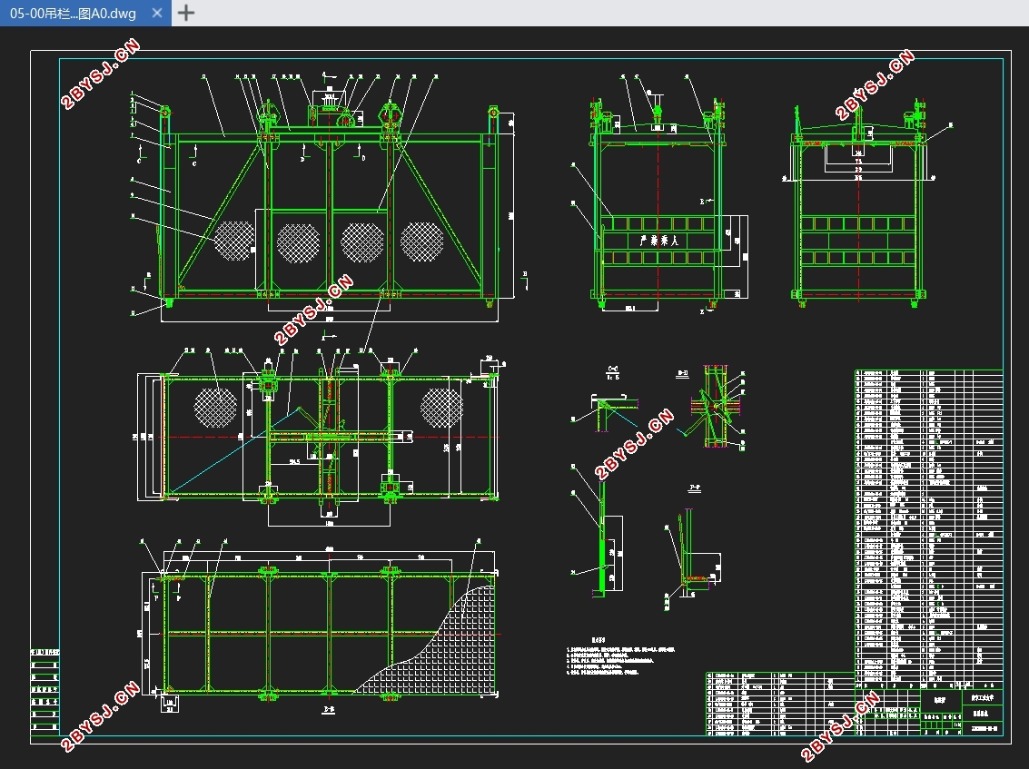
第二章 吊笼的设计 3
2.1吊笼设计简图 3
2.2吊笼重量 3
2.3吊笼整体分析 4
2.3.1笼架受力分析 4
2.3.2工况分析 4
2.3.3结构的冲击载荷 5
2.4吊笼局部强度校核 5
2.3.4各工况下吊笼顶梁 5
2.3.5次级顶横梁的校核 8
2.3.6各工况下立梁槽钢的校核 10
2.3.7各工况下底板横梁的强度校核 11
2.3.8各工况下链接耳板的强度校核 13
2.3.9停层保护器圆钢管撑剪切力校核 14
结束语 16
参 考 文 献 17
致 谢 18
