花园小区四层3800平米幼儿园教学楼设计(建筑图,结构图)
无需注册登录,支付后按照提示操作即可获取该资料.
花园小区四层3800平米幼儿园教学楼设计(建筑图,结构图)(含任务书,计算书23000字,建筑图8张,结构图8张)
1.1 设计原始资料
1.1.1 工程概况
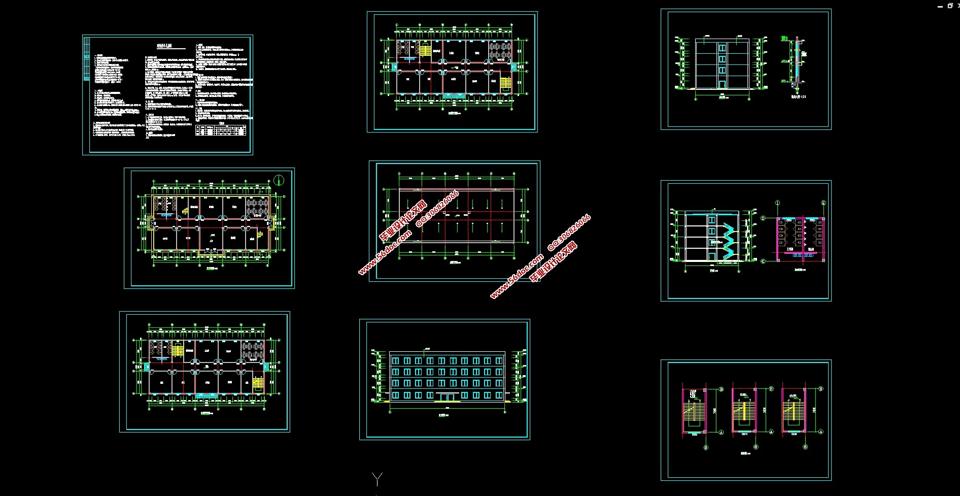
该工程为四层教学楼,主体为现浇钢筋混凝土框架结构,建筑面积3880㎡,建筑物共四层,底层层高4.2m,标准层层高3.9m,总高度15.90m,室内外高差0.450m
该教学楼拥有隔离室、办公室、晨检室、医务室等。楼内设有2个楼梯,楼梯开间均为3.0m,进深均为7.8m,楼梯的布置均符合消防、抗震的要求。
1.1.2 设计条件
该工程重要性等级为四级,本地区极端最高气温39℃,极端最低气温-6℃。年降雨量1650mm,最大积雪厚度20cm,平均相对湿度75%。主导风向为东南风。拟建场地内无地表水系分布。
1.抗震设防烈度:8度设防,设计基本地震加速度值为0.10g;
2.基本风压:0.5KN/m2,B类粗糙度;
3.雪荷载标准值:0.35KN/m2;
4.结构体系:现浇钢筋混凝土框架结构;
5.工程地质条件:拟建场地地形平坦,地层分布较为规律,地耐力按90KN/m2计,持力层为粉质粘土,Ⅱ类场地。




目录
摘要 3
前言 4
第一章 设计任务及基本要求 5
1.1 设计原始资料 5
1.2 建筑设计要求 5
1.3结构设计任务及要求 5
第二章 建筑设计说明 6
2.1建筑平面设计 6
2.2剖面设计 6
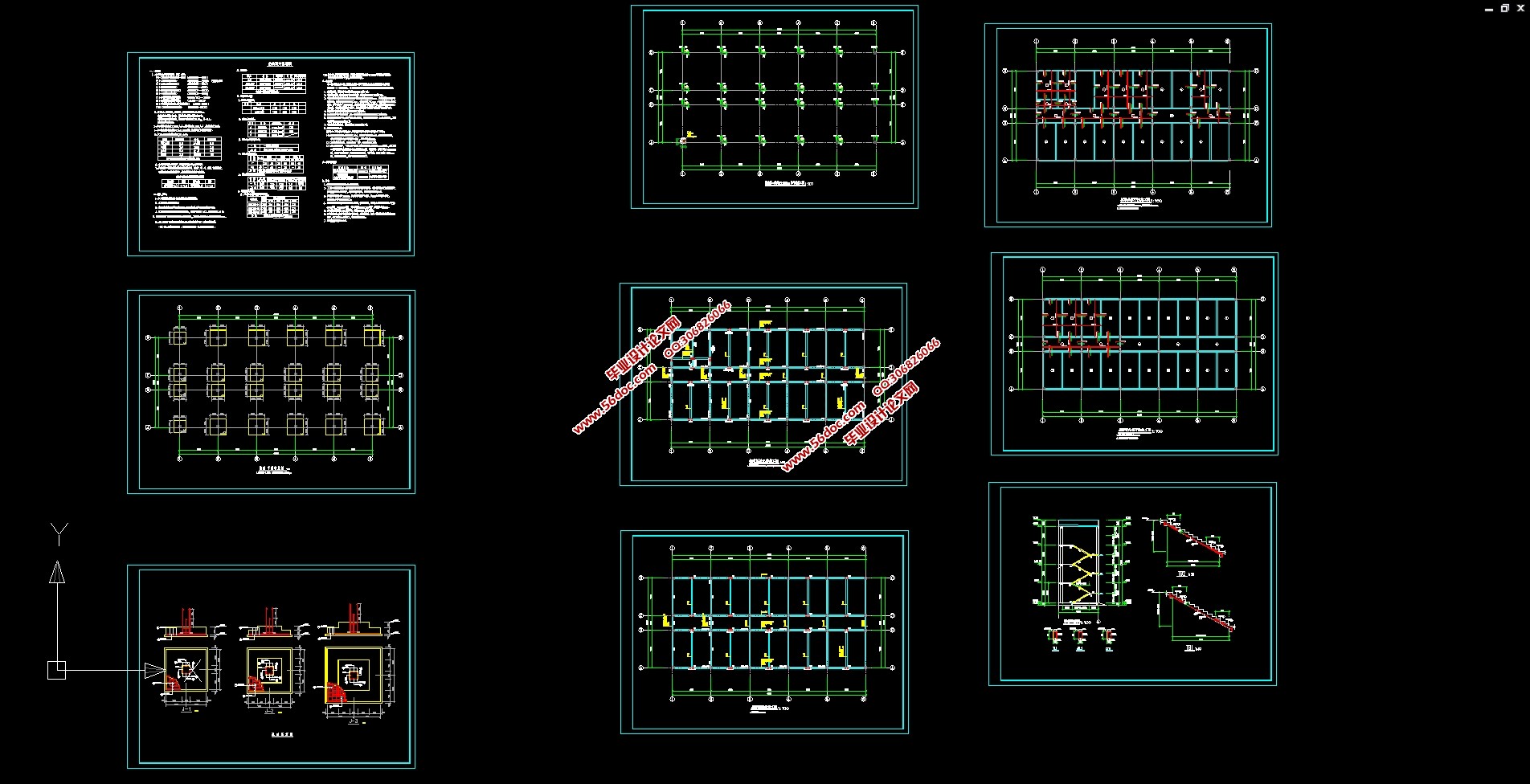
第三章 结构设计 8
3.1 结构方案的选择及结构布置 8
第四章 侧移线刚度计算 10
第五章 恒荷载作用下内力计算 11
5.1 框架恒荷载标准值计算 11
5.2 框架梁恒载作用下线荷载统计计算 13
5.3 框架节点集中荷载计算 16
5.4 恒载作用下框架梁的内力计算 18
第六章 活荷载作用下内力计算 28
6.1 框架梁活恒载作用下线荷载统计计算 28
6.2 活荷载作用下框架节点集中荷载计算 30
6.3 活载作用下框架梁的内力计算 32
第七章 风荷载作用下内力计算 40
7.1 风荷载标准值计算 40
7.2 风载作用下抗侧移刚度D的计算: 41
7.3 风荷载作用下的内力计算 42
第八章 地震荷载作用下内力计算 47
8.1 重力荷载代表值计算 47
8.2 横向框架自振周期计算 49
8.3 横向水平地震作用计算 50
8.4 水平地震作用下框架的内力计算 52
第九章 内力组合 55
9.1 横向框架梁的内力组合 56
9.2 竖向框架柱的内力组合 63
第十章 截面设计 68
10.1 设计内力 68
10.2 梁截面设计 68
10.3 框架柱截面设计 71
第十一章 基础设计 73
第十二章 楼梯设计 79
结论 84
谢辞 85
参考文献 86
