双梁悬挂过轨桥式起重机设计(含CAD零件图装配图)
无需注册登录,支付后按照提示操作即可获取该资料.
双梁悬挂过轨桥式起重机设计(含CAD零件图装配图)(论文说明书12800字,CAD图纸4张)
1.2 双梁悬挂过轨桥式起重机的方案分析
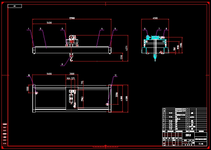
双梁悬挂过轨桥式起重机主要用在大型的加工车间,特别是流水线上作业的地方经常用到,例如钢材、一些中的零部件的调运等等场合,都需要用到桥式起重机,结合具体的工况,一般的双梁悬挂过轨桥式起重机都是用在车间很大,需要调运零部件很重的场合,所以在这里,我们设计的这款起重机型号为KSX12.5-3.75A3,端车分别安装在车间两侧的钢构上的轨道上面,双梁横跨整个车间与端车通过螺栓,焊接相连。双梁上面分别安装有轨道,这样就便于小车在上面能够横向行走,而端车是纵向行走,小车横向行走,绞车实现吊钩的升降,这样就全方位地实现了工件的调运,方便快捷。
1.2.1 结构分析
本次设计的双梁悬挂过轨桥式起重机主要用于流水线上大且重工件的调运,桥式起重机主要由:主梁,端梁,小车,吊钩以及导轨等等零部件组成,其中整个桥式起重机沿着纵向安装的轨道作纵向往复运动,而安装在主梁上面的小车则沿着横向安装在主梁上面的轨道作横向往复运动,吊钩则实现工件的垂直升降,其工作区域为一矩形,运动示意图如下:
1.2.2 机械结构总体方案与布局
双梁悬挂过轨桥式起重机主要由:主梁,端梁,小车,吊钩以及导轨等等零部件组成
2.1 起升机构的设计
2.1.1 起升电动机的选型计算
已知双梁悬挂过轨桥式起重机中,两个端梁,以及主梁,和小车等等零部件的总重量,我们取2000Kg,挂钩在Z方向移动范围为50mm~8000mm,卷筒直径d=450mm,
具体的电机设计计算如下:
N= =3.7(KW)
G-双梁悬挂过轨桥式起重机的调运能力,1000kg/h
-传动效率,取0.75
所以根据N=3.7kw,n=1500r/min,查B1表10-4-1选用Y112M-4,再查B1表10-4-2得Y112M-4电机的结构如下图所示:


目录
摘要 3
Abstract 4
第一章绪论 5
1.1课题的来源与研究的目的与意义..............................................................................5
1.2双梁悬挂过轨桥式起重机的方案分析....................................................................5
1.2.1 结构分析..................................................................................................................6
1.2.2 机械结构总体方案与布局..........................................................................7
1.3课题研究的内容..................................................................................................8
1.3.1 Solidworks设计基础..................................................................................9
1.3.2 草图绘制.....................................................................................................10
1.3.3 基准特征,参考几何体的创建..................................................................11
1.3.4 拉伸、旋转、扫描和放样特征建..............................................................12
1.3.5 工程图的设计.............................................................................................13
1.3.6 装配设计.....................................................................................................14
第二章机械结构的设计....................................................................................17
2.1 起升机构的设计 18
2.1.1 起升电动机的选型计算 18
2.1.2 圆柱齿轮减速器的选型计算 18
2.1.3 卷筒选型计算 19
2.1.4 浮动轴的设计计算 19
2.1.5 联轴器的选型计算 20
2.1.6 钢丝绳的选型计算 21
2.1.7 制动器的选型计算 22
2.2 行走小车的机构的设计 23
2.2.1小车行走电机的选型计算 24
2.2.2传动齿轮的设计计算 25
2.3 锁紧机构的选型计算 25
第三章 各部分强度的校核...........................................................................26
3.1浮动轴强度的校核 26
3.2齿轮强度的校核 27
第四章 结构设计及三维建模 28
4.1起升电机的三维建模 29
4.2减速器的三维建模 29
4.3挂钩的三维建模 30
4.4双梁悬挂过轨桥式起重机的三维建模 31
第五章 主要零件的有限元分析 32
5.1浮动轴的有限元分析 33
结论 34
致谢 35
参考文献 36
