自动送料装置的设计(含CAD零件装配图,SolidWorks三维造型)
无需注册登录,支付后按照提示操作即可获取该资料.
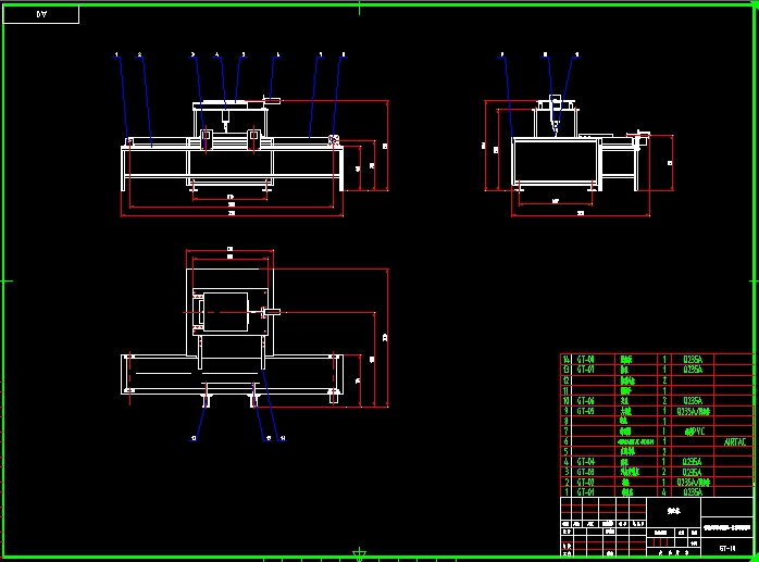
自动送料装置的设计(含CAD零件装配图,SolidWorks三维造型)(论文说明书9400字,CAD图纸9张,SolidWorks三维图)
摘要:本次设计的题目是小型棒料直径快速检测装置子组件——自动送料方式的设计,该送料装置采用传感器检测技术,通过使用汽缸作为动力源来对直径为 的小直径棒料进行自动送料,然后通过汽缸驱动机械手进行棒料直径的检测,具体研究了该自动送料所采取的方式,结果表明,该自动送料装置环保,无油污,并且自动化程度高,结构紧凑,检测效率高于传统的自动送料装置。
关键词: 自动送料方式,检测技术,方式,装置
主要创新点
本次设计的自动送料装置与传动的自动送料装置相比的创新方面在于采用汽缸作为动力源,由于汽缸成本低廉,是通过气压驱动,所以干净,噪音小且没有油污。在送料效率方面也相比于其他送料装置采用的滚珠丝杆螺母副传动有了显著提高,并且本次设计的自动送料装置结构紧凑,实用。
机械传动部分的设计计算
自动送料装置是通过电机驱动滚筒输送带转动从而把小直径棒料送到送料汽缸位置,当传感器检测到了有棒料到来,就通过PLC控制电磁阀从而来控制送料汽缸动作,将棒料推送到检测机械手下面,然后当安装在检测位置的传感器检测到棒料的到来,就通过中控系统控制电磁阀来控制机械手夹住待检测直径的棒料,然后检测汽缸推开行程,由于装有直线导轨,所有就很方便地将棒料送到检测位置进行检测。具体的电机选型计算过程如下:
N= =3(KW)
G-自动送料装置的生产能力,230kg/h。
W—输送1kg棒料的耗用能量,其值与棒料的重要有关,d小则w大,当d=3mm,
取w=0.0030kw.h/kg。
-传动效率,取0.85。
所以根据N=3kw,n=1440r/min查表得92BL4020L1-LK-B电机的结构。






目 录
1引言 1
1.1课题的来源与研究的目的和意义 1
1.2本课题研究的内容 2
2 Solidworks设计基础 3
2.1草图绘制 4
2.2基准特征,参考几何体的创建 5
2.3拉伸、旋转、扫描和放样特征建 6
2.4工程图的设计 8
2.5装配设计 9
3机械传动部分的设计计算 10
3.1输送带电机的选型计算 11
3.2直线导轨的设计计算 12
3.3送料气缸在选型计算 12
4自动送料装置中主要零件的三维建模 13
4.1汽缸的三维建模 15
4.2直线导轨副的三维建模 16
4.3机械手的三维建模 16
4.4自动送料装置的三维建模 18
5三维软件设计总结 18
结 论 19
参考文献 20
致 谢 21
